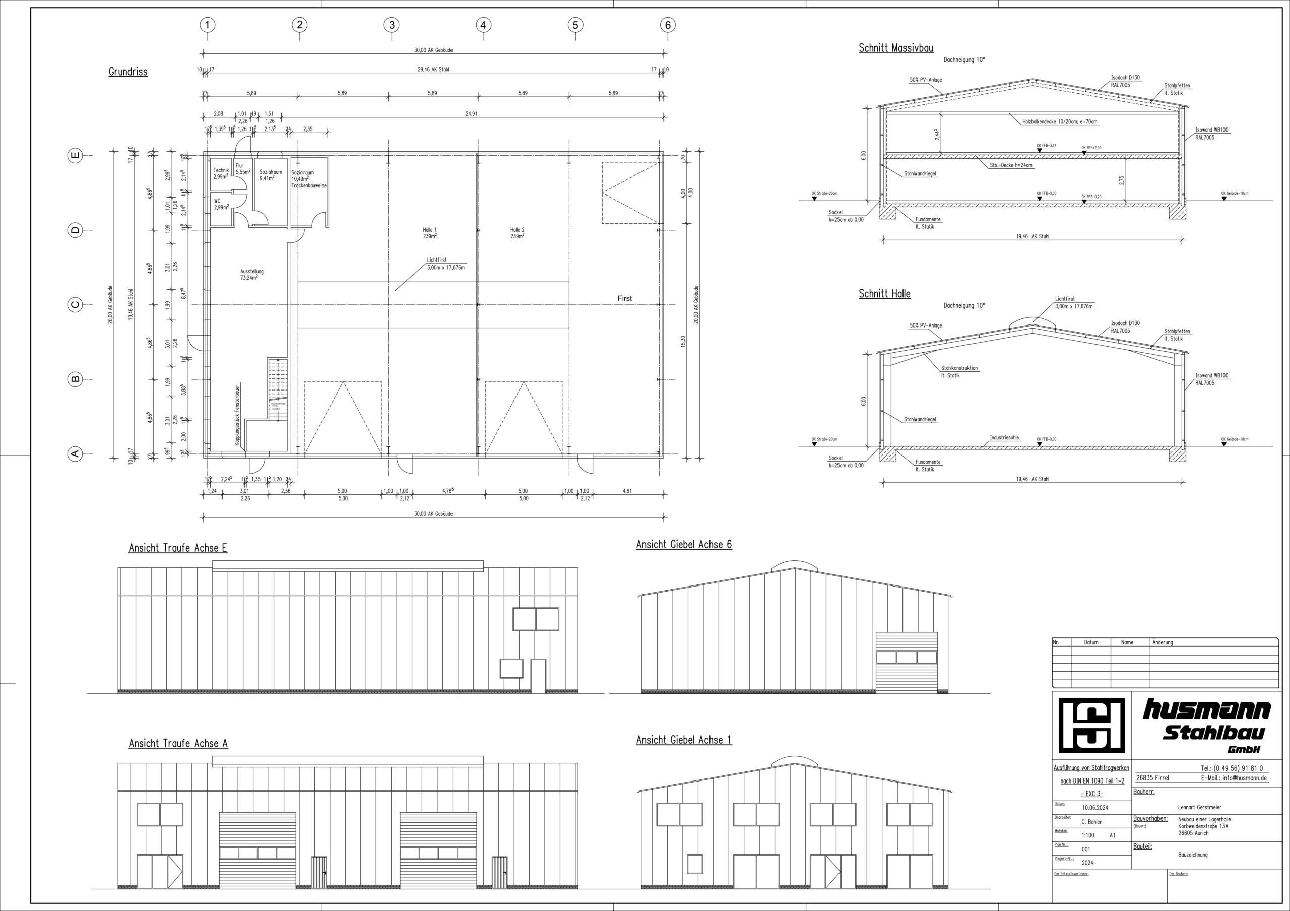
Bauzeichnung final, Stahlbau Husmann, 10.06.2024