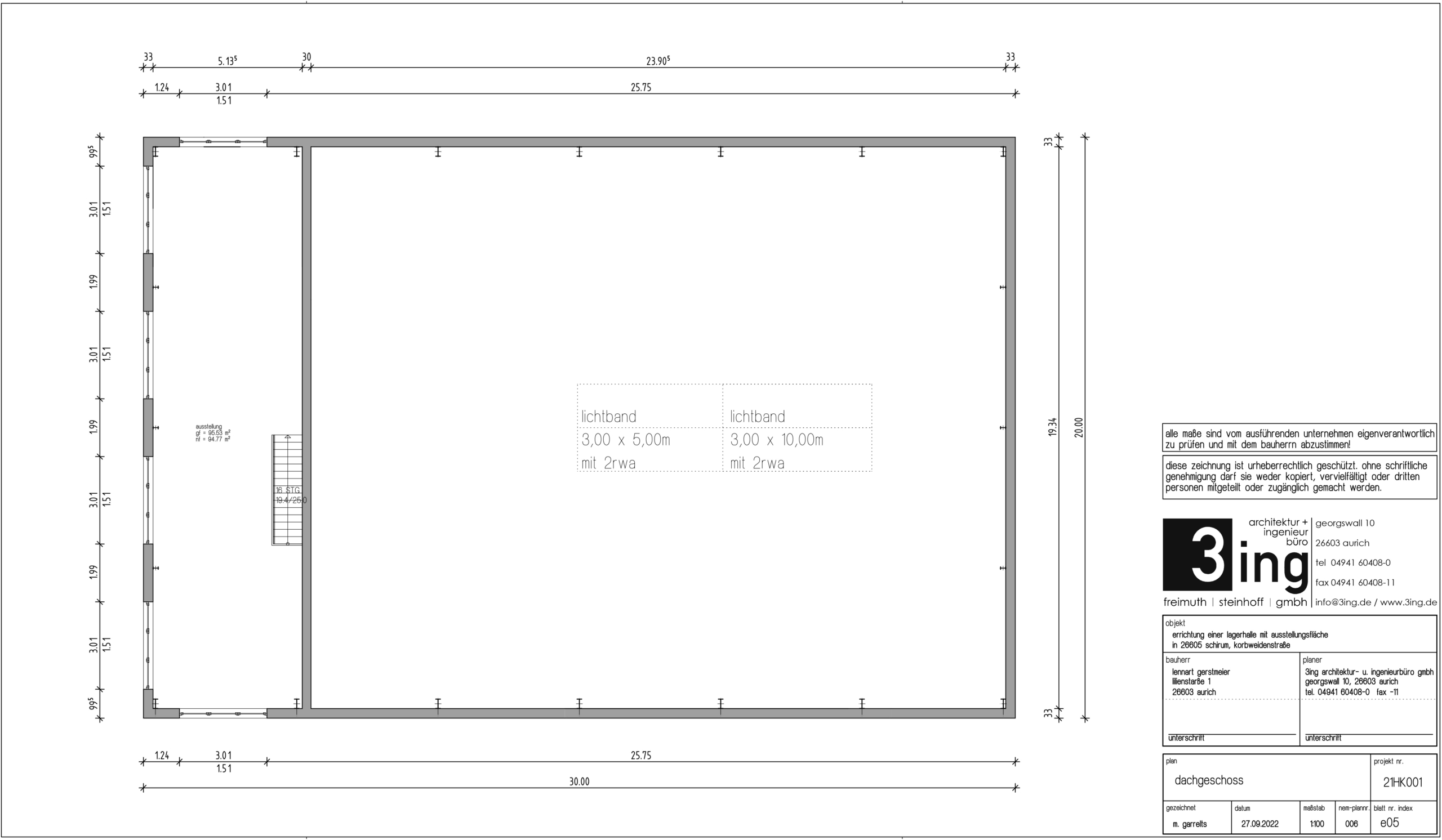
E05  .  Dachgeschoss