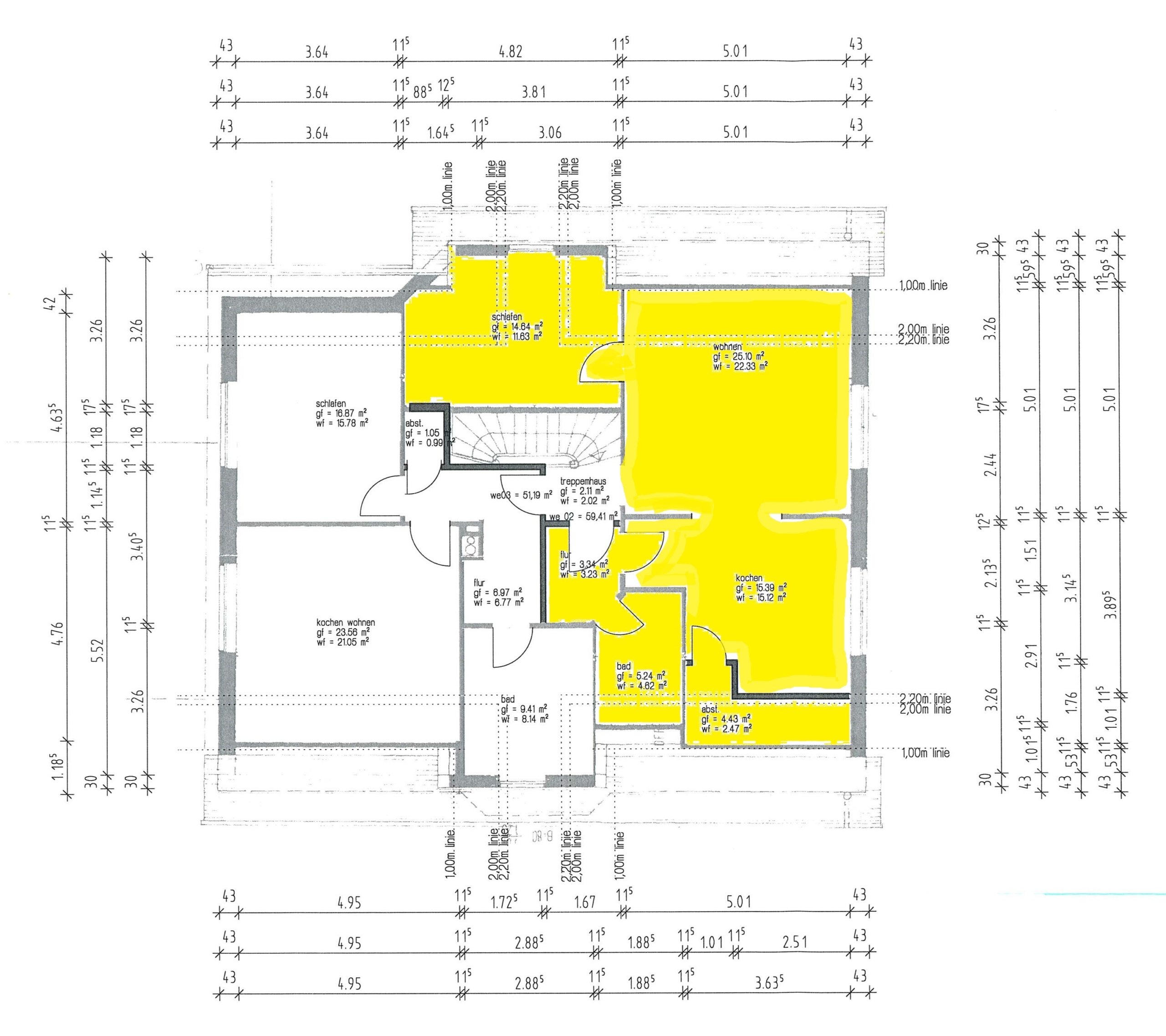
Grundriss WE02, OG vorne